Rénovation et décoration d’intérieur d’un appartement ancien sur Marseille
Rénovation et décoration d’intérieur d’un appartement ancien sur Marseille Décoration d’intérieur et réalisation de divers travaux de rénovation pour un […]
Rénovation et décoration d’intérieur d’un appartement ancien sur Marseille Décoration d’intérieur et réalisation de divers travaux de rénovation pour un […]
Rénovation et décoration d’intérieur d’un appartement dans un style industriel et scandinave sur Marseille et ses environs d’Aix, Aubagne et
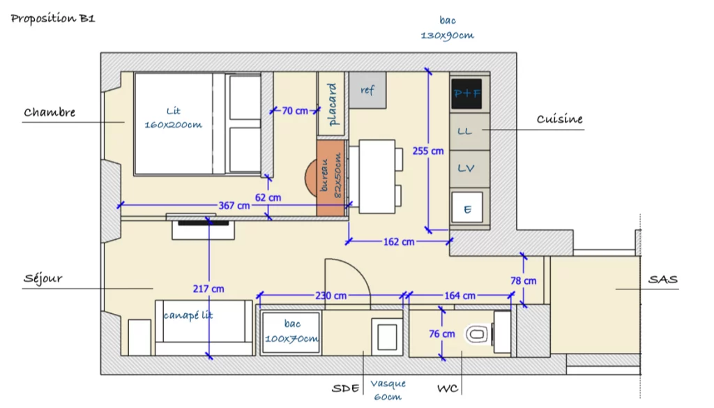
Architecte d’intérieur à Marseille pour plan : Propositions de projet d’architecture pour la transformation d’un grand appartement en 2 T2.
architecture et décoration à marseille 13013 en conception : pourquoi la qualité en architecture et décoration est-elle essentielle ? L’importance
Lorsque vous rénovez votre maison, l’un des éléments les plus importants à considérer est la cuisine. La cuisine est souvent
Projection et conseil d’un projet d’Aménagement et de décoration pour une entrée dans une établissement professionnelle par architecte d’intérieur décorateur : Intégration d’un
Dans le cadre d’un projet de restructuration et aménagement de salle de bain a Aix-En-Provence, notre cabinet d’architecte d’intérieur et de décorateur à conduit une mission sur
Projection 3D de représentations d’un aménagement d’une chambre dans appartement ancien avec tomettes et hauteur de plus de 400 cm. Imaginé par
En tant que décorateur et Architecte d’intérieur sur Aix-En-Provence. Nous travaillons avec nos clients pour donner vie à leur intérieur et créer des espaces décorés dont ils
Projet de rénovation sur Aix En Provence 13090. notre équipe d’architectes d’intérieur et décorateur à développé, un projet avec comme de réflexion